Cukrovar (ICEC) – Urbanisticko-architektonická soutěž
Cukrovar – nové centrum Šlapanic
Aktualizováno dne 12. 1. 2023
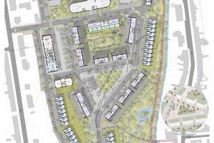
Předmětem soutěže je návrh urbanistického řešení lokality budoucího nového centra Šlapanic na území bývalého Cukrovaru a jeho okolí. Předpokládá se zde pestrý polyfunkční městský mix způsobů využití odpovídající centrálnímu významu v rámci města.
Základem zpracování má být Způsob využití (funkční náplň), Prostorové uspořádání (veřejná prostranství a charakter zástavby) a Ekonomický scénář rozvoje (etapizace realizace).
Zadání je rozděleno na požadované a doporučené požadavky řešení.
Dne 19. března 2021 se konalo ustavující jednání poroty soutěže o návrh řešení území Cukrovar - nové centrum Šlapanic. Porotě předsedá prof. Ing. arch. Jan Jehlík, vedoucí Ústavu urbanismu Fakulty architektury ČVUT. V porotě zasedají jak zástupci města, tak odborná veřejnost - urbanisté, krajináři a další přizvaní odborníci.
Dne 14. dubna 2021 zastupitelé města schválili podmínky soutěže o návrh řešení území Cukrovar - nové centrum Šlapanic.
V druhé polovině července se sešla porota soutěže o návrh nového centra Šlapanic – Cukrovaru. Jejím úkolem bylo vybrat z přihlášených zájemců další tři soutěžící ateliéry. K již vybraným ateliérům: Pavel Hnilička Architects+Planners, re:architekti a ov architekti přibyli další velmi zajímaví tvůrci: Kjellander Sjöberg + KOGAA + OpenFabric, studioLIBRE a Žalský architekti.
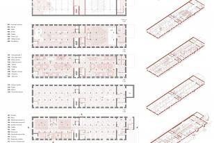
Ve Šlapanicích tak soutěžili o návrh mimořádně kvalitní architekti - urbanisté. Porota má nyní za sebou výběr soutěžících a dvě kola soutěže, kde hodnotila předložené návrhy. Kromě celkového návrhu využití 6hektarového území bude v centru pozornosti soutěžících především přestavba Sýpky jako jednoho z ústředních míst nového centra.
Hodnotící komise na svém zasedání dne 25. března 2022 rozhodla o pořádí:
1. místo - re:architekti
re:architekti Textová část [PDF 8.56 MB]
2. místo - Pavel Hnilička Architects+Planners Panel
Pavel Hnilička Architects+Planners Panel Textová část [PDF 3.68 MB]
3. místo - Kjellander Sjöberg+KOGAA+OpenFabric
Kjellander Sjöberg+KOGAA+OpenFabric Textová část [PDF 18.27 MB]
Termín
21. září 2020 - pracovní jednání zastupitelů - příprava soutěže
9/2020 - 2/2021 - příprava zadávací dokumentace, předsoutěžní konzultace s odbornou porotou
19. března 2021 - ustavující jednání poroty soutěže o návrh řešení území Cukrovar - nové centrum Šlapanic
14. dubna 2021 - zastupiteli schváleny podmínky soutěže
červenec 2021 - zasedal porota, jež vybrala další tři soutěžící ateliéry (celkem je jich šest)
19. listopadu 2021 - hodnocení soutěžních návrhů - 1. fáze
25. března 2022 - hodnocení soutěžních návrhů - 2. fáze
29. března 2022 - zasedání Rady města Šlapanice schválilo jako vítěze ateliér re:architekti
Kontaktní osoby MěÚ Šlapanice:
Ing. Hana Strnadová
Masarykovo náměstí 100/7, 664 51 Šlapanice
telefon: 533 304 343
e-mail: strnadova@slapanice.cz


